Budowa bramy przesuwnej podwieszanej to doskonałe rozwiązanie dla osób szukających funkcjonalności i estetyki w jednym. Właściwy dobór materiałów oraz elementów konstrukcyjnych ma kluczowe znaczenie dla zapewnienia płynnego działania bramy. W tym artykule przedstawimy najważniejsze aspekty, które należy wziąć pod uwagę, aby stworzyć bramę, która będzie nie tylko praktyczna, ale także trwała i estetyczna.
Przygotowanie do budowy bramy przesuwniej podwieszanej wymaga zrozumienia podstawowych elementów, takich jak szyny prowadzące, wózki jezdne oraz rolki. Odpowiednie dobranie tych komponentów zapewni nie tylko łatwość użytkowania, ale także bezpieczeństwo. W dalszej części artykułu omówimy kluczowe kroki w procesie budowy oraz porady dotyczące konserwacji, aby brama mogła służyć przez długie lata.
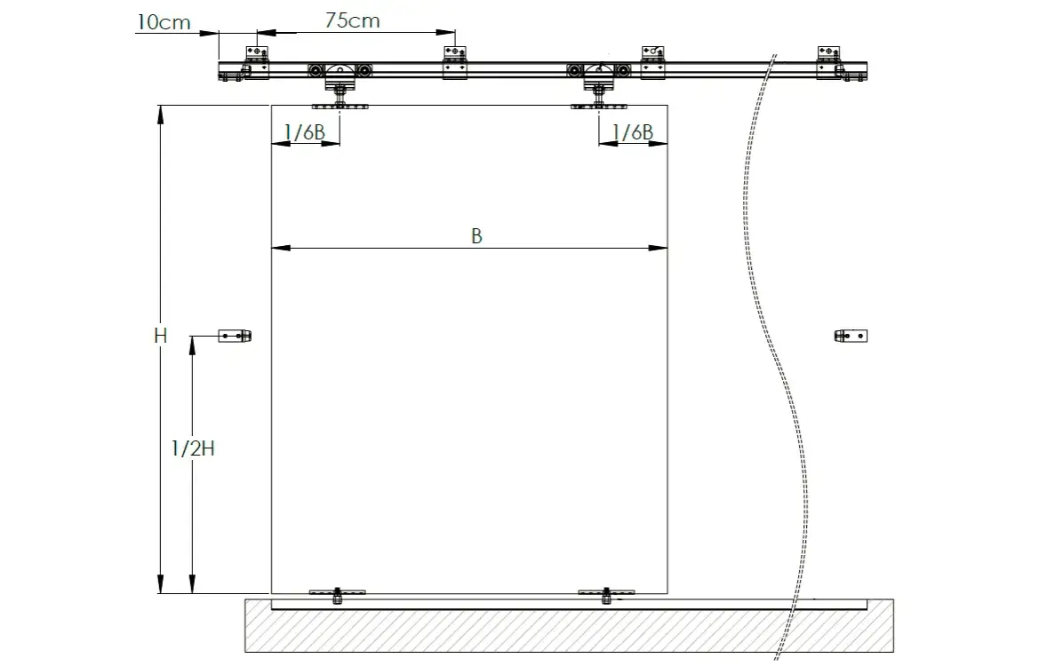
Kluczowe informacje:- Szyny prowadzące są kluczowym elementem, zapewniającym płynne działanie bramy.
- Wózki jezdne mogą być dwu lub czterorolkowe, co wpływa na ich wydajność.
- Rolki muszą być odpowiednio dobrane do szyn, aby uniknąć problemów z poruszaniem się bramy.
- Uchwyty i stopery są niezbędne dla bezpieczeństwa i stabilności bramy.
- Montaż wymaga dokładnego przestrzegania zaleceń producenta.
- Bramy przesuwne podwieszane są idealne w miejscach, gdzie tradycyjne prowadnice są trudne do zainstalowania.
Wybór odpowiednich materiałów do budowy bramy przesuwnej
Wybór odpowiednich materiałów do budowy bramy przesuwnej podwieszanej ma kluczowe znaczenie dla jej trwałości oraz estetyki. Najczęściej stosowane materiały to drewno i metal, z których każdy ma swoje unikalne właściwości. Drewno, takie jak cedr, charakteryzuje się naturalnym pięknem i doskonałą izolacją, ale wymaga regularnej konserwacji. Z kolei metal, w tym aluminium i stal, zapewnia większą wytrzymałość i odporność na warunki atmosferyczne, co czyni go idealnym wyborem na dłuższą metę.
Wybierając materiały, warto również uwzględnić ich wygląd i dopasowanie do otoczenia. Brama przesuwna powinna harmonizować z architekturą budynku oraz stylem ogrodu. W przypadku drewna, różnorodność kolorów i faktur pozwala na łatwe dopasowanie do indywidualnych preferencji. Z kolei metalowe bramy mogą być malowane lub pokrywane powłokami, co daje możliwość uzyskania pożądanego efektu wizualnego.
| Materiał | Zalety | Wady |
|---|---|---|
| Cedr | Naturalne piękno, dobra izolacja | Wymaga regularnej konserwacji |
| Aluminium | Odporność na korozję, lekkość | Mniej estetyczne niż drewno |
| Stal | Wysoka wytrzymałość, trwałość | Może rdzewieć bez odpowiedniej ochrony |
Jak dobrać materiały do konstrukcji bramy przesuwnej
Wybór materiałów do budowy bramy przesuwnej podwieszanej powinien być dostosowany do lokalnego klimatu, intensywności użytkowania oraz preferencji estetycznych. Na przykład, w regionach o dużej wilgotności lepiej sprawdzą się materiały odporne na korozję, takie jak aluminium lub stal ocynkowana. Z kolei w miejscach o surowym klimacie, drewno powinno być odpowiednio zaimpregnowane, aby zapobiec jego degradacji. Warto również rozważyć styl architektoniczny budynku, aby brama dopełniała jego wygląd i charakter.
Najlepsze rodzaje drewna i metalu do budowy
Do budowy bramy przesuwnej podwieszanej najlepiej nadają się gatunki drewna, takie jak cedr i sosna, które są naturalnie odporne na warunki atmosferyczne. Cedr wyróżnia się nie tylko estetyką, ale także trwałością, co czyni go idealnym wyborem. W przypadku metali, aluminium i stal są doskonałymi opcjami; aluminium jest lekkie i odporne na rdzewienie, podczas gdy stal oferuje wyjątkową wytrzymałość. Wybór odpowiednich materiałów ma kluczowe znaczenie dla funkcjonalności i długowieczności bramy.
Niezbędne narzędzia do stworzenia bramy przesuwnej
Aby zbudować bramę przesuwna podwieszana, niezbędne są odpowiednie narzędzia, które ułatwią cały proces. Kluczowe narzędzia to m.in. piła, wkrętarka oraz poziomica, które zapewniają precyzję i bezpieczeństwo podczas pracy. Warto również zainwestować w narzędzia ochronne, takie jak okulary i rękawice, aby zminimalizować ryzyko kontuzji. Każde z tych narzędzi pełni istotną rolę w zapewnieniu, że brama będzie nie tylko estetyczna, ale także funkcjonalna.
Wybór odpowiednich narzędzi jest kluczowy dla efektywności pracy. Na przykład, piła tarczowa ułatwia szybkie i dokładne cięcie materiałów, podczas gdy wkrętarka pozwala na łatwe mocowanie elementów. Poziomica jest niezbędna do zapewnienia, że brama jest zamontowana w idealnej pozycji, co jest kluczowe dla jej prawidłowego działania. Posiadanie wszystkich tych narzędzi w zestawie zwiększa komfort pracy i pozwala na uniknięcie niepotrzebnych przerw.
- Piła tarczowa: Służy do szybkiego i precyzyjnego cięcia drewna i metalu.
- Wkrętarka: Umożliwia łatwe mocowanie elementów, co przyspiesza proces budowy.
- Poziomica: Zapewnia, że wszystkie elementy są zamontowane w odpowiedniej pozycji, co jest kluczowe dla funkcjonalności bramy.
- Miara: Niezbędna do dokładnych pomiarów, aby uniknąć błędów w wymiarach.
- Okulary ochronne: Chronią oczy przed odłamkami i pyłem podczas pracy.
Lista narzędzi potrzebnych do budowy bramy
Podczas budowy bramy przesuwnej podwieszanej kluczowe jest posiadanie odpowiednich narzędzi, które ułatwią cały proces. Niezbędne narzędzia to m.in. piła, wkrętarka, poziomica, miara oraz narzędzia ochronne. Każde z nich odgrywa istotną rolę, zapewniając precyzję i bezpieczeństwo podczas pracy. Posiadanie kompletu narzędzi zwiększa efektywność i komfort budowy bramy.
Jak używać narzędzi do precyzyjnej konstrukcji
Aby osiągnąć najlepsze rezultaty podczas budowy bramy przesuwnej podwieszanej, kluczowe jest stosowanie najlepszych praktyk w używaniu narzędzi. Dokładne pomiary są fundamentem precyzyjnych cięć, dlatego warto korzystać z miary i poziomicy, aby upewnić się, że wszystkie elementy są odpowiednio wymiarowane. Podczas cięcia materiałów, należy zachować ostrożność i unikać pośpiechu, aby zminimalizować ryzyko błędów. Prawidłowe techniki użycia narzędzi przyczyniają się do lepszej jakości wykonania bramy.
Czytaj więcej: Jak zrobić bramę garażową drewnianą - proste kroki i porady
Krok po kroku: Proces budowy bramy przesuwnej
Budowa bramy przesuwnej podwieszanej wymaga staranności i dokładności na każdym etapie. Pierwszym krokiem jest przygotowanie terenu, co obejmuje oczyszczenie miejsca z przeszkód oraz zapewnienie odpowiednich wymiarów. Ważne jest, aby dokładnie zmierzyć przestrzeń, w której brama będzie zamontowana, aby uniknąć późniejszych problemów z jej działaniem. Upewnij się, że teren jest równy, co jest kluczowe dla prawidłowego funkcjonowania bramy.
Następnie przystępujemy do instalacji systemu zawieszenia oraz prowadnic. To kluczowy etap, który zapewnia, że brama będzie się płynnie poruszać. Należy zamontować prowadnice w odpowiednich miejscach, upewniając się, że są one dobrze wypoziomowane. Użyj poziomicy, aby sprawdzić, czy prowadnice są równo ustawione, co zapobiegnie problemom z przesuwaniem się bramy w przyszłości.
Ostatnim krokiem w procesie budowy jest zamontowanie samej bramy oraz sprawdzenie wszystkich mechanizmów. Po zainstalowaniu bramy, przeprowadź testy, aby upewnić się, że działa płynnie i bez zacięć. Warto również zainstalować dodatkowe elementy zabezpieczające, takie jak stopery, które zapobiegają wypadnięciu bramy z toru. Dokładne sprawdzenie wszystkich komponentów zapewni długotrwałe i bezproblemowe użytkowanie bramy przesuwnej podwieszanej.
Przygotowanie miejsca i pomiarów do budowy
Przygotowanie miejsca do budowy bramy przesuwnej podwieszanej jest kluczowe dla sukcesu całego projektu. Należy dokładnie oczyścić teren z wszelkich przeszkód, takich jak kamienie czy krzewy, które mogą utrudniać montaż. Dokładne pomiary są niezbędne, aby upewnić się, że brama zmieści się w planowanej przestrzeni. Warto również zwrócić uwagę na nachylenie terenu, ponieważ może to wpłynąć na późniejsze działanie bramy.
Montaż systemu zawieszenia i prowadnic
Instalacja systemu zawieszenia oraz prowadnic to kluczowy etap w budowie bramy przesuwnej podwieszanej. Rozpocznij od wyznaczenia miejsc, w których będą montowane prowadnice, a następnie przymocuj je do podłoża, upewniając się, że są dokładnie wypoziomowane. W przypadku bram o większych wymiarach, warto zastosować dodatkowe wzmocnienia, aby zapewnić stabilność konstrukcji. Po zamontowaniu prowadnic, przystąp do instalacji wózków jezdnych, które umożliwią płynne poruszanie się bramy po szynach. Sprawdź, czy wszystkie elementy są prawidłowo zamocowane, aby uniknąć problemów w przyszłości.
Bezpieczeństwo podczas budowy bramy przesuwnej
Podczas budowy bramy przesuwnej podwieszanej niezwykle ważne jest przestrzeganie zasad bezpieczeństwa. Używanie odpowiedniego sprzętu ochronnego, takiego jak kaski, rękawice i okulary ochronne, może znacząco zminimalizować ryzyko urazów. Osoby pracujące nad projektem powinny być świadome potencjalnych zagrożeń, takich jak ostre narzędzia czy ciężkie elementy konstrukcyjne. Zrozumienie i przestrzeganie zasad bezpieczeństwa jest kluczowe dla zapewnienia bezpiecznego środowiska pracy.
Oprócz osobistego sprzętu ochronnego, ważne jest również, aby miejsce pracy było odpowiednio zorganizowane. Należy unikać zostawiania narzędzi na podłodze, co może prowadzić do potknięć i upadków. Upewnij się, że wszyscy pracownicy są poinformowani o procedurach awaryjnych i mają dostęp do apteczki pierwszej pomocy. Regularne szkolenia z zakresu bezpieczeństwa mogą pomóc w utrzymaniu wysokiego poziomu świadomości i odpowiedzialności w zespole.
Jakie środki ostrożności należy zachować
Aby zapobiec wypadkom podczas budowy bramy przesuwnej podwieszanej, należy wdrożyć kilka podstawowych środków ostrożności. Przede wszystkim, przed rozpoczęciem pracy, upewnij się, że teren jest wolny od przeszkód, które mogą stanowić zagrożenie. Warto również zadbać o odpowiednie oświetlenie, aby uniknąć przypadkowych urazów. Zawsze informuj innych o swoich zamiarach, zwłaszcza gdy używasz ciężkich narzędzi lub materiałów, aby uniknąć niebezpiecznych sytuacji.
Najczęstsze błędy i jak ich unikać
Podczas budowy bramy przesuwnej podwieszanej mogą wystąpić liczne błędy, które można łatwo uniknąć. Jednym z najczęstszych jest niedokładne pomiarowanie, co prowadzi do problemów z dopasowaniem elementów. Zawsze podwójnie sprawdzaj wymiary przed cięciem materiałów. Innym błędem jest zaniedbanie bezpieczeństwa, takie jak brak ochrony oczu czy rąk, co może skutkować poważnymi urazami. Regularne przypominanie sobie o zasadach bezpieczeństwa i staranne planowanie pracy mogą pomóc w uniknięciu tych powszechnych pułapek.
Utrzymanie i konserwacja bramy przesuwnej
Aby zapewnić długowieczność bramy przesuwnej podwieszanej, regularne utrzymanie i konserwacja są kluczowe. Warto zacząć od regularnego czyszczenia, które pozwoli usunąć brud i zanieczyszczenia, które mogą wpływać na działanie mechanizmu. Używaj łagodnych detergentów i wody, aby nie uszkodzić powierzchni bramy. Dodatkowo, zaleca się smarowanie ruchomych części, co zapobiega ich zużywaniu i zapewnia płynność ruchu.
Inspekcje powinny być przeprowadzane co najmniej raz w roku. Sprawdzaj stan szyn prowadzących oraz wózków jezdnych, aby upewnić się, że nie ma uszkodzeń. W przypadku zauważenia jakichkolwiek problemów, takich jak zarysowania czy rdzewienie, należy podjąć odpowiednie działania naprawcze. Regularne konserwacje nie tylko przedłużają żywotność bramy, ale również zwiększają jej bezpieczeństwo i funkcjonalność.
Jak dbać o bramę przesuwną, aby służyła długo
Aby brama przesuwna podwieszana służyła przez długi czas, warto wprowadzić kilka rutynowych praktyk konserwacyjnych. Regularne czyszczenie szyn i elementów ruchomych pozwoli uniknąć zatykania się mechanizmu. Należy również smarować rolki i wózki specjalnym smarem, co zapewni ich płynne działanie. Co jakiś czas warto sprawdzić, czy wszystkie śruby i elementy mocujące są odpowiednio dokręcone, aby zapobiec luzom, które mogą prowadzić do uszkodzeń.
Rozwiązywanie problemów z działaniem bramy
W przypadku problemów z działaniem bramy przesuwnej podwieszanej, pierwszym krokiem jest identyfikacja źródła usterki. Często spotykanym problemem są zacięcia, które mogą być spowodowane brudem lub zanieczyszczeniami w szynach. Jeśli brama nie porusza się płynnie, sprawdź, czy rolki nie są uszkodzone lub zardzewiałe. W przypadku trudności z zamykaniem lub otwieraniem bramy, warto zwrócić uwagę na stan mechanizmu zawieszenia oraz upewnić się, że nie ma przeszkód na drodze ruchu bramy.
Nowoczesne technologie w utrzymaniu bramy przesuwnej
W dzisiejszych czasach, aby jeszcze bardziej zwiększyć funkcjonalność i bezpieczeństwo bramy przesuwnej podwieszanej, warto rozważyć integrację nowoczesnych technologii. Systemy automatyki domowej mogą być zastosowane do zdalnego sterowania bramą, co nie tylko ułatwia codzienne użytkowanie, ale także zwiększa bezpieczeństwo. Dzięki aplikacjom mobilnym można monitorować stan bramy w czasie rzeczywistym oraz otrzymywać powiadomienia o jej działaniu, co pozwala na szybszą reakcję w przypadku wykrycia problemów.
Dodatkowo, rozważając zastosowanie czujników ruchu oraz kamer monitorujących, można jeszcze bardziej zabezpieczyć swoją posesję. Te rozwiązania umożliwiają nie tylko bieżące śledzenie aktywności wokół bramy, ale także automatyczne zamykanie bramy po określonym czasie, co eliminuje ryzyko pozostawienia jej otwartej. Inwestowanie w takie technologie to krok w stronę nowoczesności i komfortu, który może znacznie poprawić jakość życia oraz bezpieczeństwo użytkowników.